Waschraum Hebebühnen.

Nassraum Hebebühnen.

Um dass gesamte Lieferprogramm anzuschauen, einfach herunterscrollen, um das Bild zu vergrössern einfach drauf klicken

---------------------------------------------------------------------------------------------------------------------------------------------------------------------

 

Engellift TK 3500 AW ; PREMIUM 2-Säulen Autowasch Hebebühne    -3.500kg. 

Spezielle Nassraum Hebebühne., das Preisgünstige Alternativ für Unterirdische Stempelhebebühnen

Engellift TK 3500 AW ; PREMIUM Zweisäulen Autowasch Hebebühnen:

 

2-Säulen Nassraum Autolift der EXTRA Premium klasse  !

Diesen wasserdichte Hebebühnen sind mit separate Hydraulikunit ausgestattet, DAS alternativ wann Sie ein Preisgünstige Lösung suchen für Ihre Waschraum !.

mit sein lange Fahrbahnen von 4200mm Nutzbare länge, kann er alle PKWs, SUVs, und Lieferwagen auch mit lange Radstand, bis zu Hubhöhe von 1850mm anheben, mit seinen offen gestalteter Fahrbahnen sind keine Obstakel im Wege, mit extra breite zwischen der Säulen und der Fahrbahnen Konstruktion.

Sehr Robust gebaut, mit ein Patentierten Hydraulisch Hubsystem (Dual Driven) wobei KEINEN Stahldraht Kabel oder Industrieketten zum Einsatz kommen !!,  

ALLES ist Wasser Proof geschützt von der spezielle Hydraulik bis zum Pulverbeschichtung, sowie gegen aggressive Reinigungsmittel.

ausgelegt für ein sehr lange Lebensdauer., 2 Jahr Garantie !.

 

Technische Angaben:

  • ​​​​​​​Tragkraft: 3.500 kg. !!!
  • Hubhöhe: 1850mm.
  • Min. Hubhöhe: 100mm (Offene Fahrbahnen)
  • Hubzeit: 40 Sekunden.
  • Pneumatische Entriegelung.
  • Pulverbeschichtung
  • Standard Farben: Anthrazit RAL 7016 + Orange RAL 2004  (andere Farben möglich gegen Aufpreis.)
  • Antrieb: 380(400)Volt / 50Hz. (3-phasen).,  220 Volt/50Hz (1-phase) möglich gegen Aufpreis 
  • Eigengewicht: 1.420 kg.

 

Einführungspreis :  CHF. 7.490,00 exkl. MwSt.​​​​​​​

​​​​​​​--------------------------------------------------------------------------------------------------------------------

Kontaktieren Sie uns

---------------------------------------------------------------------------------------------

engellift SB-3500 D; PREMIUM Unterflur-Stempel 1-Säulen Autowasch lift / Unter-flur Nassraum Hebebühne    -3.500kg. 

Engellift SB-3500D ; PREMIUM 1-Stempel Unterflur Autowasch Hebebühnen:

 

1-Stempel Unterflur Nassraum Autolift der EXTRA Premium klasse  !

Diesen wasserdichte Hebebühnen sind mit separate Hydraulikunit ausgestattet, der Lösung für Ihre Waschraum !., versehen von ein offenes Hubplattform mit kurze Abmessung für Schweller hub , anstatt auf der Räder, daher komplett Radfrei, Hubplattform hat ein Stahlen Umrandung mit darein Hart-Kunstoff Gitter die offen ist. 

mit sein 3.500kg Hubleistung kann er alle PKWs, SUVs, und Lieferwagen bis zu Hubhöhe von 1850mm anheben, mit seinen offen gestalteter Fahrbahnen sind keine Obstakel im Wege, Sehr Robust gebaut, mit ein Patentierten Hydraulisch Hubsystem, ALLES ist Wasser Proof geschützt von der spezielle Hydraulik bis zum der spezielle Pulverbeschichtung, sowie gegen aggressive Reinigungsmittel.

ausgelegt für ein sehr lange Lebensdauer., 5 Jahr Garantie !.

Der Einbau kann auch durch versorgt werden. 

 

Technische Angaben:

  • ​​​​​​​Tragkraft: 3.500 kg. !!!
  • Hubhöhe: 1850mm.
  • Bodeneben
  • Hubzeit: 40 Sekunden.
  • Pulverbeschichtung
  • Standard Farben: Anthrazit RAL 7016 + Orange RAL 2004  (andere Farben möglich gegen Aufpreis.)
  • Antrieb:  220 Volt/50Hz (1-phase) , 380(400)Volt / 50Hz. (3-phasen). möglich gegen Aufpreis 
  • Eigengewicht: 928 kg.

 

Einführungspreis :  CHF. 6.750,00 exkl. MwSt.​​​​​​​

​​​​​​​--------------------------------------------------------------------------------------------------------------------

Kontaktieren Sie uns

---------------------------------------------------------------------------------------------

 

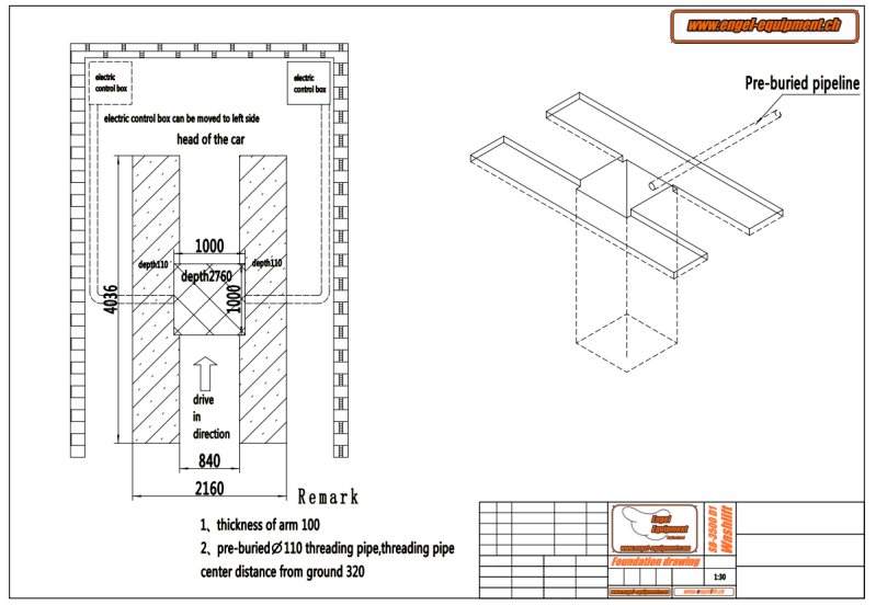
Engellift SB-3500 D1; PREMIUM Unterflur- Einstempel Autowasch lift,  lange Fahr-bahnen

Unterflur Nassraum Hebebühne mit lange Fahrbahnplattform    -3.500kg. 

Engellift SB-3500 D1 ; PREMIUM 1-Stempel Unterflur Autowasch Hebebühnen:

 

1-Stempel Unterflur Nassraum Autolift der EXTRA Premium klasse  !

Diesen wasserdichte Hebebühnen sind mit separate Hydraulikunit ausgestattet, der Lösung für Ihre Waschraum !., versehen von ein offenes Hubplattform mit lange Abmessung für Rad hub , Hubplattform hat ein Stahlen Umrandung mit darein Hart-Kunstoff Gitter die offen ist. 

mit sein 3.500kg Hubleistung kann er alle PKWs, SUVs, und Lieferwagen bis zu Hubhöhe von 1850mm anheben, mit seinen offen gestalteter Fahrbahnen sind keine Obstakel im Wege, Sehr Robust gebaut, mit ein Patentierten Hydraulisch Hubsystem, ALLES ist Wasser Proof geschützt von der spezielle Hydraulik bis zum der spezielle Pulverbeschichtung, sowie gegen aggressive Reinigungsmittel.

ausgelegt für ein sehr lange Lebensdauer., 2 Jahr Garantie !.

Der Einbau kann auch durch versorgt werden. 

 

Technische Angaben:

  • ​​​​​​​Tragkraft: 3.500 kg. !!!
  • Hubhöhe: 1850mm.
  • Offene Fahrbahnen länge: 4.016 mm.
  • Fahrbahn Eigene höhe: 100 mm.
  • Fahrbahn breite: 640 mm.
  • Gesamt breite: 2.140 mm
  • Bodeneben
  • Hubzeit: 40 Sekunden.
  • Pulverbeschichtung
  • Standard Farben: Anthrazit RAL 7016 + Orange RAL 2004  (andere Farben möglich gegen Aufpreis.)
  • Antrieb:  220 Volt/50Hz (1-phase) , 380(400)Volt / 50Hz. (3-phasen). möglich gegen Aufpreis 
  • Eigengewicht: 928 kg.

 

Einführungspreis :  CHF. 7.995,00 exkl. MwSt.​​​​​​​

​​​​​​​--------------------------------------------------------------------------------------------------------------------

Kontaktieren Sie uns

---------------------------------------------------------------------------------------------

 

Engellift SB-6000 A:  6.000 kg  Unterflur-Stempel Hebebühne​​​​​​​

für Boden Einbau.

Engellift SB-6000 A ; PREMIUM Zweistempel Unterflur- 

Hebebühnen:  -6.000 kg.

 

2-Stempel Unterflur Trucklift der EXTRA Premium klasse 

Diesen wasserdichte Hebebühnen sind mit separate Hydraulikunit ausgestattet,  auch für Ihre Waschraum !.

mit sein 3 stufige Tragarmen versehen von ein neues innerlocking Mechanismus, kann er alle PKWs, SUVs, Lieferwagen  Trucks auch mit lange Radstand, bis zu Hubhöhe von 1850mm anheben.

Sehr Robust gebaut, mit ein Patentierten Hydraulisch Hubsystem, ALLES ist Wasser Proof geschützt von der spezielle Hydraulik bis zum Pulverbeschichtung, sowie gegen aggressive Reinigungsmittel, ausgelegt für ein sehr lange Lebensdauer., 2 Jahr Garantie !.

Der Einbau kann auch durch versorgt werden. 

 

Technische Angaben:

  • ​​​​​​​Tragkraft: 6.000 kg. !!!
  • Hubhöhe: 1850mm.
  • Bodeneben.
  • Hubzeit: 40 Sekunden.
  • Pulverbeschichtung
  • Standard Farben: Anthrazit RAL 7016 + Orange RAL 2004  (andere Farben möglich gegen Aufpreis.)
  • Antrieb: 220 Volt/50Hz (1-phase),  380(400)Volt / 50Hz. (3-phasen). möglich gegen Aufpreis 
  • Eigengewicht: 1.323 kg.

 

Einführungspreis :  CHF. 12.995,00 exkl. MwSt.​​​​​​​

​​​​​​​--------------------------------------------------------------------------------------------------------------------

Kontaktieren Sie uns